Serrature da applicare, SPRANGA, chiudiporta, maniglioni antipanico e cilindri
- Cassa e coperchio:
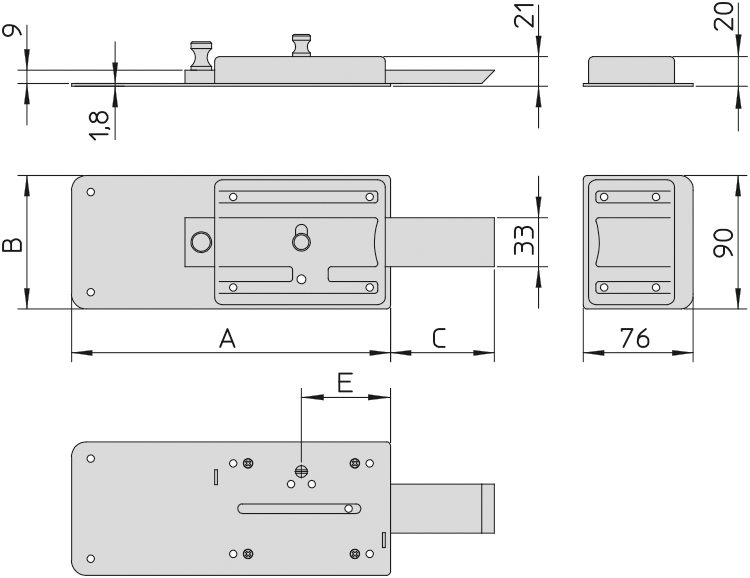
in acciaio verniciato con piastre di fissaggio per serratura e controbocchetta di spessore 1,8 mm.
- Catenaccio:
in acciaio massiccio nichelato, a 5 mandate e 1/2 (1/2 mandata con funzione di scrocco) o a 6 mandate, azionabile dall'esterno con la chiave, dall'interno manualmente attraverso i pomolini.
- Chiavi:
in ottone nichelato, a profilo Viro, 3 in dotazione.
- Meccanismo:
- pistoncini in ottone;
- contropistoncini in ottone;
- molle pistoncini in bronzo fosforoso.
- Forniti con:
controbocchetta in acciaio verniciato, mostrina ovale in ottone (per versioni con cilindro esterno fisso - art. 714) o ghiera cilindro in ottone (per versioni con cilindro esterno staccato - art. 712) e viti di fissaggio.
- Confezione:
individuale, in sacchetto di polietilene, in scatola multipla da 2 pz.
CLICCA SU QUESTO SIMBOLO NELLA RIGA DELL'ARTICOLO DI TUO INTERESSE PER IDENTIFICARE IL RIVENDITORE PIÙ VICINO A TE, CHE TRATTA QUESTO ARTICOLO
SERIE 1.7850 - 5 Mandate e 1/2 - CATENACCIO E SCROCCO INCORPORATO
| Art. | Entrata | Dimensioni della cassa | Corsa delle mandate | Chiavi | Peso unitario (senza cilindro) | Pezzi per confezione | |
|---|---|---|---|---|---|---|---|
N. | mm E | mm A x B | mm C | Art. N. | g | N. | |
1.7852 | 50 | 215 x 90 | 75 | 015 | 1400 | 2 | |
1.7853 | 60 | 215 x 90 | 75 | 015 | 1400 | 2 |
Far seguire al codice articolo, il codice del cilindro desiderato (.712 = cilindro esterno staccato o .714 = cilindro esterno fisso). Es. 1.7852.714
SERIE 1.7830 - 6 Mandate - SOLO CATENACCIO
| Art. | Entrata | Dimensioni della cassa | Corsa delle mandate | Chiavi | Peso unitario (senza cilindro) | Pezzi per confezione | |
|---|---|---|---|---|---|---|---|
N. | mm E | mm A x B | mm C | Art. N. | g | N. | |
1.7832 | 50 | 215 x 90 | 75 | 015 | 1400 | 2 | |
1.7833 | 60 | 215 x 90 | 75 | 015 | 1400 | 2 |
Far seguire al codice articolo, il codice del cilindro desiderato (.712 = cilindro esterno staccato o .714 = cilindro esterno fisso). Es. 1.7832.712










1.7852